Skip to content
Home
About
Team
Mission
History
Clients
Community Design
Community Planning
Government Services
International
Native American
LANDSCAPE ARCHITECTURE
Civic
Residential & Mixed Use
Recreation & Entertainment
Retail & Commercial
Streetscape
DESIGN GUIDELINES
El Paseo Revitalization – Palm Desert
White Rock Springs Ranch
Tracy Hills
The Preserve
Rice Ranch
Mesa Verde
Green Valley
Folsom Ranch
SMART MAP STUDIO
GIS
3D
NEWSLETTERS
Landscape Architecture
Community Design
Technology
Contact
Home
DESIGN GUIDELINES
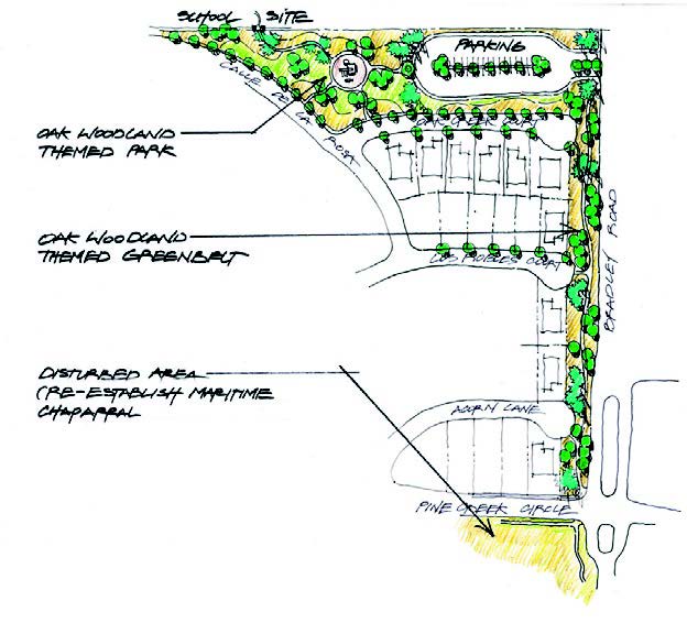
Rice Ranch
Rice Ranch
(29 Images)
Post navigation
Previous:
The Preserve
Next:
Mesa Verde